059 70 70 10
info@eeckhout.be
Jozef II straat 45 - 49, 8400 Oostende
Kapelstraat 167a, 8450 Bredene

Woning te Bredene

Stijlvolle, halfopen nieuwbouwwoning met oprit en grote, zonnige tuin!

loader
Vraagprijs
€ 394 000

3

Bel 059/70 70 10

Print deze fiche Meer informatie?

Stijlvolle, halfopen nieuwbouwwoning met oprit en grote, zonnige tuin!

Deze halfopen bebouwing is gelegen aan de Blauwe Sluis in Bredene, op een gunstige ligging met een vlotte bereikbaarheid richting centrum, kust en omliggende gemeenten.
Achteraan geniet je van volledige rust: de woning paalt aan open velden, wat zorgt voor een prachtig, weids uitzicht en een groot gevoel van ruimte en privacy.
Deze nieuwbouwwoning is zeer energiezuinig (E-peil 30) en is ingedeeld als volgt:
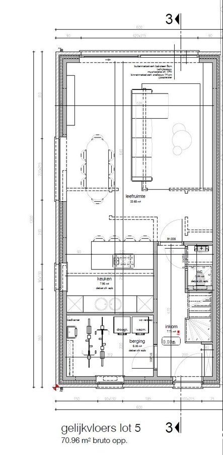
- gelijkvloers: inkomhal, grote (fietsen)berging, apart toilet, lichtrijke woonkamer met open, geïnstalleerde keuken en diepe, zonnige tuin;
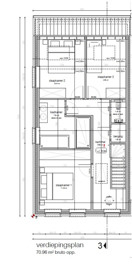
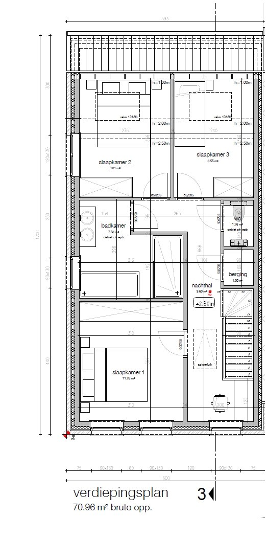
- eerste verdieping: nachthal, 3 volwaardige slaapkamers, berging, apart toilet en badkamer.
- zolder
De koper heeft de mogelijk om, mits meerprijs, de zolder volledig te laten afwerken door de bouwheer (inclusief het doortrekken van de trap).
Aan de voorzijde is er een private oprit. Daarnaast is er (gratis) parkeergelegenheid in de straat.
Deze woning is praktisch ingedeeld met oog voor licht, ruimte en energiezuinig wonen. Dankzij de halfopen structuur geniet je bovendien van extra privacy én veel natuurlijk lichtinval!
De koper heeft deels nog inspraak in de stijl en afwerking van de woning voor zover deze zaken nog niet werden vastgelegd door vergunning of bestelling van materialen.
De vermelde prijs is exclusief BTW en andere kosten. Contacteer ons voor een gedetailleerde prijsberekening!

Algemene gegevens

Adres:Sluizenstraat 152/Lot 5
Bredene
Referentie:SLUI5
Vraagprijs:€ 394.000
Type:Woning
Beschikbaar vanaf:Bij oplevering
Ligging:Vrij uitzicht
Perceeloppervlakte:338 m²
Type constructie:Traditioneel
Bouwjaar:2026
Bouwlagen:3
Algemene staat:Instapklaar

Indeling

Slaapkamers:3
Badkamers:1
WC:2
Woonkamer:Ja, U-kamer
Keuken:Ja, Open keuken, Ingericht met toestellen
Berging:8 m²
Tuin:Ja
Tuin oriëntatie:Zuid-West
Parking:2
Parking Types:Privé

Comfort

Snelweg:Ja - op 4000 m tot 5000 m
Bushalte:Ja - op 1500 m tot 2000 m
Tramhalte:Ja - op 3000 m tot 4000 m
Winkel:Ja - op 1000 m tot 1500 m
School:Ja - op 1500 m tot 2000 m
Kinderopvang:Ja - op 1500 m tot 2000 m
Bank:Ja - op 1000 m tot 1500 m
Ontspanning:Ja - op minder dan 500 m
Restaurant:Ja - op minder dan 500 m
Raamwerk:Draai-/kiepramen, PVC
Dak:Zadeldak
Beglazing:Hoogrendementsglas
Elektriciteit:conform
Verwarming:Warmtepomp
Verwarmd water:Warmtepomp
Isolatie:Volledig geïsoleerd
Internet:Ja
Mech. ventilatie :Ja
Kabel:Ja
Zonnepanelen:Ja

Waardes

Grondwaarde: € 127 000
Nieuwbouwwaarde: € 267 000

Informatieplicht

Voorkooprecht:Neen
Verkavelingsvergunning van toepassing:Ja
Stedenbouwkundige bestemming:Woongebied
Dagvaarding en herstelvordering:Geen rechterlijke herstelmaatregel of bestuurlijke maatregel opgelegd
Overstromingsgevoelig:Geen overstromingsgevoelig gebied
Overstromingsgebied:Geen afgebakende zones
Overstromingskans perceel (P-score):  D
Overstromingskans gebouw (G-score):  D
Erfgoed:Geen beschermd erfgoed

EPC

Energielabel:A
Renovatieplicht:Neen
EPC E-peil:30,00

Sluizenstraat 152, 8450 Bredene

Vergelijkbare panden

Aan de hand van uw zoekprofiel vonden wij overige panden die u mogelijk ook kunnen interesseren:

Benedenwoning te Oostende

Te koop Benedenwoning Oostende
2 2
€ 400 000

Benedenwoning te Oostende

Te koop Benedenwoning Oostende
2
€ 395 000

Appartement te Oostende

Te koop Appartement Oostende
1
€ 395 000

Blijf op de hoogte van ons nieuwste aanbod

Niet gevonden wat u zocht?
Maak een persoonlijk zoekprofiel aan en blijf als eerste op de hoogte van ons nieuw aanbod.

Schrijf u in
U gebruikt een verouderde browser. Upgrade nu naar een moderne browser om ten volle gebruik te kunnen maken van alle functies van onze site:
Chrome |  FireFox |  Opera |  Safari |  Internet Explorer
Terug naar boven